Home staging
Valutazione gratuita
Cerco casa
Lavora con noi
Blog
Toggle navigation
Home
Vendite
Affitti
Luxury
Servizi
Chi Siamo
Contatti
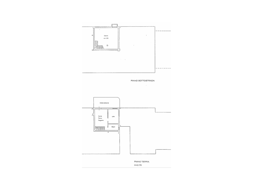
Planimetria
[X]
Cookies tecnici
Cookies analitici
Cookies profilazione/marketing
Salva le mie scelte
ACCETTO TUTTI I COOKIES
Personalizza
Per ulteriori informazioni consulta la nostra Cookie Policy