CASA ANGOLARE ABBINATA 3 CAMERE DA LETTO ZONA CA - rif. IM-1349
249.000 €
5 locali
3 camere
2 bagni
218 MQ
50 - Fotografie/Planimetrie
Caratteristiche immobile
Camere: 3
Bagni: 2
Riscaldamento: Autonomo
Tipo Riscaldamento: Radiatori
Combustibile Riscald.: Metano
185 MQ
218 MQ comm.
Stato immobile: Abitabile
Giardino: Privato
Giardino MQ: 90
Posto auto: SI
Locali: 5
Balcone: SI
Mansarda: SI
Cantina: SI
Piano: (NON USARE)Su piĂą livelli
Su piĂą livelli
Totale piani: 2
Tot. unitĂ presenti: 1
Anno costr.: 1967
Anno ristr.: 1980
Cucina: Abitabile
Spese condominiali: assenti
Esposizione:
Est Sud
Camino/Caminetto
Presentazione
🏠CASA ANGOLARE ABBINATA 3 CAMERE DA LETTO ZONA RESIDENZIALE CA’ OSSI, FORLI’ đźŹ
📍Viale della Resistenza, 2, quartiere Ca’ Ossi, Forlì (FC).📍
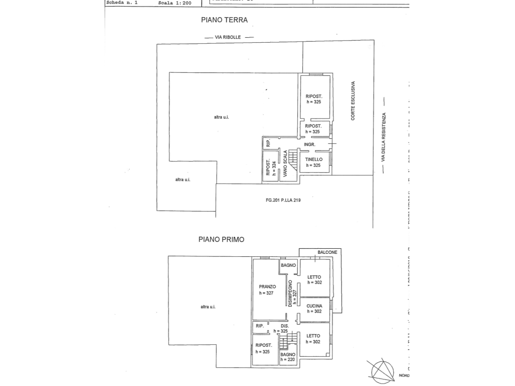
Proponiamo in vendita Casa angolare abbinata da un lato di 218mq commerciali sviluppata su 2 piani ubicata in Viale della Resistenza, 2, quartiere Ca’ Ossi, Forlì FC.
La casa, sviluppata su due piani, si presenta così disposta: al piano terra ingresso (5,4mq) accessibile dal giardino di proprietà , tinello (9mq), n. 4 locali adibiti a ripostiglio (rispettivamente di 6,70mq, 6mq, 2,6mq e 20mq) e vano scala dal quale si accede al piano primo, il quale è così disposto: n. 2 camere da letto matrimoniali (17mq e 15mq), studio finestrato utlizzabile come camera da letto (11mq) , cucina abitabile (11mq) permettente l’accesso al balcone (14,5mq), soggiorno (28mq), n. 2 bagni di cui uno finestrato (3,75mq e 4,60mq) e ripostiglio (2,6mq).
Completa la proprietĂ il giardino angolare privato di 90mq.
La casa è una costruzione ante ’67, presenta rifiniture degli anni 80/90, il tetto, le gronde e l’imbiancatura della facciata sono state eseguiti 15 anni fa, l’impianto elettrico è degli anni 90, al piano terra sono presenti le inferiate, gli infissi sono in legno e vetro singolo.
Il Riscaldamento è autonomo.
(I metri quadri indicati tra parentesi corrispondono ai calpestabili).
📌INFO:
- 3 camere da letto (17mq,15mq, 11mq);
- Soggiorno di 28mq;
- 1 balcone (14,5mq)
- 2 bagni;
- Cucina abitabile;
- Riscaldamento autonomo;
- Giardino angolare privato (90mq).
💸 PREZZO: 249.000€
📞 Contattaci se pensi che questa sia la soluzione adatta a te!
📍Viale della Resistenza, 2, quartiere Ca’ Ossi, Forlì (FC).📍
Proponiamo in vendita Casa angolare abbinata da un lato di 218mq commerciali sviluppata su 2 piani ubicata in Viale della Resistenza, 2, quartiere Ca’ Ossi, Forlì FC.
La casa, sviluppata su due piani, si presenta così disposta: al piano terra ingresso (5,4mq) accessibile dal giardino di proprietà , tinello (9mq), n. 4 locali adibiti a ripostiglio (rispettivamente di 6,70mq, 6mq, 2,6mq e 20mq) e vano scala dal quale si accede al piano primo, il quale è così disposto: n. 2 camere da letto matrimoniali (17mq e 15mq), studio finestrato utlizzabile come camera da letto (11mq) , cucina abitabile (11mq) permettente l’accesso al balcone (14,5mq), soggiorno (28mq), n. 2 bagni di cui uno finestrato (3,75mq e 4,60mq) e ripostiglio (2,6mq).
Completa la proprietĂ il giardino angolare privato di 90mq.
La casa è una costruzione ante ’67, presenta rifiniture degli anni 80/90, il tetto, le gronde e l’imbiancatura della facciata sono state eseguiti 15 anni fa, l’impianto elettrico è degli anni 90, al piano terra sono presenti le inferiate, gli infissi sono in legno e vetro singolo.
Il Riscaldamento è autonomo.
(I metri quadri indicati tra parentesi corrispondono ai calpestabili).
📌INFO:
- 3 camere da letto (17mq,15mq, 11mq);
- Soggiorno di 28mq;
- 1 balcone (14,5mq)
- 2 bagni;
- Cucina abitabile;
- Riscaldamento autonomo;
- Giardino angolare privato (90mq).
💸 PREZZO: 249.000€
📞 Contattaci se pensi che questa sia la soluzione adatta a te!
Dove si trova?
Contatto e richiesta informazioni
Invia una richiesta all'agenzia
Agente di riferimento
Alessandra Crivellini
IM-1349
Autorizzo il trattamento dei miei dati personali in base art. 13 del reg. eu 679/2016