FABBRICATO CON POSSIBILITA' DI CAMBIO D'USO - rif. Lorenzo
249.000 €
4 locali
3 camere
1 bagni
73 MQ
14 - Fotografie/Planimetrie
Caratteristiche immobile
Camere: 3
Bagni: 1
Riscaldamento: Autonomo
Tipo Riscaldamento: Radiatori
Combustibile Riscald.: GAS
75 MQ
73 MQ comm.
Stato immobile: Buono
Giardino: Privato
Garage: SI
Classe ener.: ND esente
Locali: 4
Cantina: SI
Arredamento: SI
Condizionatore: SI
Piano: Terra
Anno costr.: 1960
Anno ristr.: 1990
Cucina: Abitabile
Spese condominiali: assenti
Esposizione:
Nord Est Sud Ovest
Fibra Ottica
Accesso disabili
Presentazione
🏠OCCASIONE A CERVIA A 200mt DAL MARE🏠
📍Vialetto Sebastiano Caboto, SNC, Piano Terra, Cervia (RA).📍
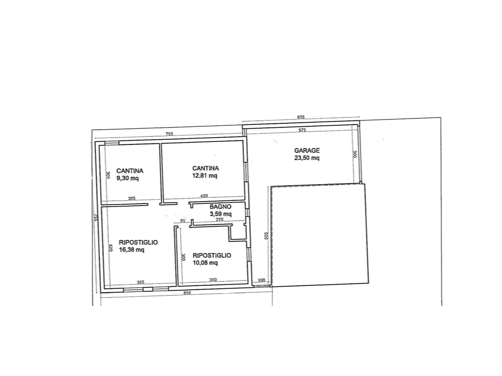
Proponiamo in vendita Fabbricato indipendente, con possibilità di cambio di destinazione d’uso in abitazione, di 73mq commerciali posto al piano Terra, ubicata in Vialetto Sebastiano Caboto, SNC, Piano Terra, Cervia (RA).
Il fabbricato si presenta così disposto: doppio ingresso, n. 4 locali adibibili rispettivamente a: cucina abitabile (16,38mq), n. 3 camere da letto (10,08mq, 12,81mq, 9,30mq) e bagno finestrato con box doccia (3,59mq). Completa la proprietà un garage di 23,50mq.
L’immobile presenta rifiniture degli anni ’70 in parte e anni ’90:
Gli infissi sono in doppio vetro/legno, con tapparella (sostituita recentemente), l’impianto elettrico è datato agli anni ’80, il bagno è stato ristrutturato negli anni ’90 (comprese le tubature), è presente uno split di aria condizionata, la caldaia è degli anni ’90, mentre, tutti gli altri impianti sono centralizzati.
FABBRICATO:
L’immobile è una costruzione degli anni ’60.
(I metri quadri indicati tra parentesi corrispondono ai calpestabili).
📌INFO:
- 3 camere da letto (10,08mq, 12,81mq, 9,30mq);
- Cucina abitabile di 16,38mq;
- 1 bagno finestrato con box doccia (3,59mq);
- Garage di proprietà di 23,50mq;
- Caldaia autonoma;
💸 PREZZO: 249.000€
📞 Contattaci se pensi che questa sia la soluzione adatta a te!
👤 Lorenzo Bergamaschi
📱 331 9039533
☎️ 0543 094205
📍Vialetto Sebastiano Caboto, SNC, Piano Terra, Cervia (RA).📍
Proponiamo in vendita Fabbricato indipendente, con possibilità di cambio di destinazione d’uso in abitazione, di 73mq commerciali posto al piano Terra, ubicata in Vialetto Sebastiano Caboto, SNC, Piano Terra, Cervia (RA).
Il fabbricato si presenta così disposto: doppio ingresso, n. 4 locali adibibili rispettivamente a: cucina abitabile (16,38mq), n. 3 camere da letto (10,08mq, 12,81mq, 9,30mq) e bagno finestrato con box doccia (3,59mq). Completa la proprietà un garage di 23,50mq.
L’immobile presenta rifiniture degli anni ’70 in parte e anni ’90:
Gli infissi sono in doppio vetro/legno, con tapparella (sostituita recentemente), l’impianto elettrico è datato agli anni ’80, il bagno è stato ristrutturato negli anni ’90 (comprese le tubature), è presente uno split di aria condizionata, la caldaia è degli anni ’90, mentre, tutti gli altri impianti sono centralizzati.
FABBRICATO:
L’immobile è una costruzione degli anni ’60.
(I metri quadri indicati tra parentesi corrispondono ai calpestabili).
📌INFO:
- 3 camere da letto (10,08mq, 12,81mq, 9,30mq);
- Cucina abitabile di 16,38mq;
- 1 bagno finestrato con box doccia (3,59mq);
- Garage di proprietà di 23,50mq;
- Caldaia autonoma;
💸 PREZZO: 249.000€
📞 Contattaci se pensi che questa sia la soluzione adatta a te!
👤 Lorenzo Bergamaschi
📱 331 9039533
☎️ 0543 094205
Dove si trova?
Contatto e richiesta informazioni
Invia una richiesta all'agenzia
Agente di riferimento
Lorenzo Bergamaschi
Lorenzo
Autorizzo il trattamento dei miei dati personali in base art. 13 del reg. eu 679/2016