Casa indipendente con giardino - rif. 36
230.000 €
9 locali
6 camere
4 bagni
348 MQ
53 - Fotografie/Planimetrie
Caratteristiche immobile
Camere: 6
Bagni: 4
Riscaldamento: Autonomo
Tipo Riscaldamento: A pavimento
Combustibile Riscald.: GPL
320 MQ
348 MQ comm.
Stato immobile: Abitabile
Giardino: Privato
Giardino MQ: 8500
Posto auto: SI
Garage: Singolo
Classe ener.: E
Consumo ipe: 159.26 kwh/mq
Locali: 9
Terrazzo: SI
Mansarda: SI
Arredamento: Parziale
Piano: Seminterrato
Su più livelli
Totale piani: 3
Tot. unità presenti: 2
Anno costr.: 1987
Anno ristr.: 2009
Cucina: Angolo cottura
Spese condominiali: assenti
Esposizione:
Sud Ovest
Cancello Elettrico
Camino/Caminetto
Accesso disabili
Presentazione
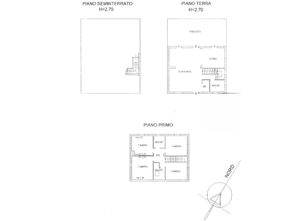
GRIZZANA MORANDI - nella frazione di Pian di Setta comoda a tutti i servizi che offre il paese, alla fermata ferroviaria ed a circa 6 km dal casello autostradale di Rioveggio proponiamo casa indipendente composta da due unità abitative con ingressi indipendenti, al piano seminterrato la prima unità con accesso su soggiorno e cucina, due camere da letto, guardaroba, bagno e ripostiglio; al piano terra troviamo la seconda unità con ingresso su ampio open space soggiorno e cucina con uscita su terrazzo panoramico di circa 50 mq, ripostiglio e bagno, al primo piano quattro camere da letto e due bagni. In fabbricato a parte con struttura in legno e di recente costruzione troviamo l'autorimessa di 20 mq. Impianto di riscaldamento a pavimento al piano seminterrato con caldaia alimentata a GPL, pannelli solari per la produzione di acqua calda sanitaria, infissi in legno con doppi vetri. L'immobile si presenta in buono stato ed abitabile da subito.
Giardino di proprietà di circa 8500 mq totalmente recintati.
Chiama per fissare un appuntamento di visione oppure manda una mail e verrai subito ricontattato:
* GESTIONE MUTUO
* GESTIONE PERMUTE
* VALUTAZIONI GRATUITE DEGLI IMMOBILI
* SARETE AFFIANCATI FINO AL ROGITO DEFINITIVO
* Seguici su Facebook e Instagram, clicca mi piace su ” La Tua Casa su Espande” riceverai tutti gli aggiornamenti immobiliari.
Il nostro sito: www.espandeimmobiliare.it
Giardino di proprietà di circa 8500 mq totalmente recintati.
Chiama per fissare un appuntamento di visione oppure manda una mail e verrai subito ricontattato:
* GESTIONE MUTUO
* GESTIONE PERMUTE
* VALUTAZIONI GRATUITE DEGLI IMMOBILI
* SARETE AFFIANCATI FINO AL ROGITO DEFINITIVO
* Seguici su Facebook e Instagram, clicca mi piace su ” La Tua Casa su Espande” riceverai tutti gli aggiornamenti immobiliari.
Il nostro sito: www.espandeimmobiliare.it
Dove si trova?
Contatto e richiesta informazioni
Invia una richiesta all'agenzia
Agente di riferimento
36
Autorizzo il trattamento dei miei dati personali in base art. 13 del reg. eu 679/2016