Porzione di casa in sasso con terreno a Vigo - rif. 63
120.000 €
11 locali
7 camere
4 bagni
341 MQ
51 - Fotografie/Planimetrie
Caratteristiche immobile
Camere: 7
Bagni: 4
Riscaldamento: Autonomo
Tipo Riscaldamento: Radiatori
Combustibile Riscald.: GPL
310 MQ
341 MQ comm.
Stato immobile: Abitabile
Giardino: Privato
Giardino MQ: 10300
Posto auto: SI
Garage: SI
Classe ener.: G
Consumo ipe: 421.92 kwh/mq
Locali: 11
Arredamento: Parziale
Piano: Terra
Su più livelli
Totale piani: 4
Cucina: Angolo cottura
Spese condominiali: assenti
Esposizione:
Nord Est Sud Ovest
Camino/Caminetto
Presentazione
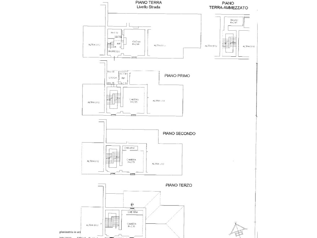
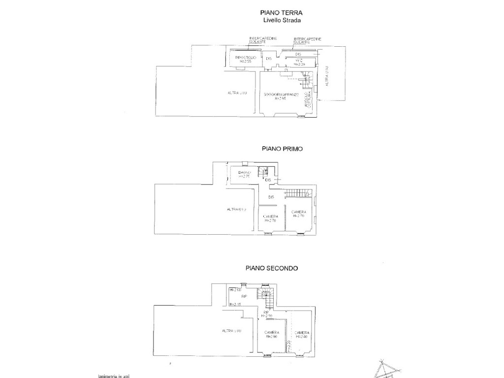
CAMUGNANO - nella frazione di Vigo, inserita nell'antico borgo in posizione panoramica, con vista sul Corno alle Scale e il lago di Suviana, vendesi splendida porzione di casa in sasso con giardino esclusivo ed adiacente ettaro circa di terreno, composta da due unità abitative: la prima di mq 170 è disposta su tre livelli con ingresso su ampio salone con camino in pietra di Montovolo ed angolo cottura, disimpegno, bagno, cantina e accesso interno ad autorimessa; salendo le scale troviamo due camere da letto con vista sulla vallata, bagno padronale con vasca ed all'ultimo piano altre due camere matrimoniali ed una cameretta singola; la seconda unità di mq 140 si sviluppa su quattro livelli, composta da ingresso su sala con angolo cottura e camino, due ripostigli, bagno e tre camere da letto di cui due con cabina armadio. Entrambe le unità presentano riscaldamento autonomo a GPL ed anche a legna.
L'immobile nel complesso è tenuto in buone condizioni, le finiture sono del periodo di costruzione, vanta di una splendida vista panoramica sulla vallata sottostante. Dista circa 25 minuti dal casello autostradale di Rioveggio e a 15 minuti di macchina dal famoso castello della Rocchetta Mattei e ad altri punti di maggiore interesse turistico come il Borgo della Scola ed i parchi dei laghi del Brasimone e di Suviana.
Chiama per fissare un appuntamento di visione oppure manda una mail e verrai subito ricontattato:
* GESTIONE MUTUO
* GESTIONE PERMUTE
* VALUTAZIONI DEL TUO IMMOBILE
* Seguici su Facebook e Instagram e clicca mi piace su ” La Tua Casa su Espande” riceverai tutti gli aggiornamenti immobiliari.
Il nostro sito: www.espandeimmobiliare.it
L'immobile nel complesso è tenuto in buone condizioni, le finiture sono del periodo di costruzione, vanta di una splendida vista panoramica sulla vallata sottostante. Dista circa 25 minuti dal casello autostradale di Rioveggio e a 15 minuti di macchina dal famoso castello della Rocchetta Mattei e ad altri punti di maggiore interesse turistico come il Borgo della Scola ed i parchi dei laghi del Brasimone e di Suviana.
Chiama per fissare un appuntamento di visione oppure manda una mail e verrai subito ricontattato:
* GESTIONE MUTUO
* GESTIONE PERMUTE
* VALUTAZIONI DEL TUO IMMOBILE
* Seguici su Facebook e Instagram e clicca mi piace su ” La Tua Casa su Espande” riceverai tutti gli aggiornamenti immobiliari.
Il nostro sito: www.espandeimmobiliare.it
Dove si trova?
Contatto e richiesta informazioni
Invia una richiesta all'agenzia
Agente di riferimento
63
Autorizzo il trattamento dei miei dati personali in base art. 13 del reg. eu 679/2016