Casale di ampie dimensioni con servizi e terreno - rif. FABBRI

114.000 €
10 locali
7 camere
1 bagni
400 MQ

54 - Fotografie/Planimetrie

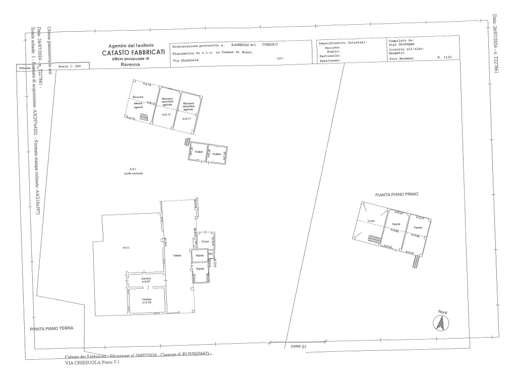
Caratteristiche immobile

Camere: 7
Bagni: 1
380 MQ
400 MQ comm.
Stato immobile: Abitabile
Giardino: Privato
Giardino MQ: 6713
Posto auto: oltre 2 posti
Garage: Doppio
Classe ener.: G
Locali: 10
Mansarda: SI
Cantina: SI
Arredamento: Parziale
Condizionatore: SI
Su più livelli
Totale piani: 2
Tot. unità presenti: 1
Anno costr.: 1935
Cucina: Abitabile
Spese condominiali: assenti
Esposizione: Nord Est Sud Ovest
Camino/Caminetto
Accesso disabili
Taverna

Presentazione

Russi: a 2 km dal centro in zona comoda a tutti i servizi e in piena campagna, ampio casolare disposto su due piani con capannone su due livelli e servizi esterni. " Un luogo dove il tempo sembra rallentare" Al piano terra: ingresso, cucina con camino, soggiorno, stanza totalmente insonorizzata per sala musicale, stanza e splendida taverna. Due cantine, ampio porticato con travi a vista, forno a legna e rispostigli. Al piano superiore: sei camere da letto e bagno. La casa si presenta in buone condizioni, tetto a posto, pavimenti e travi sono originali e in ottime condizioni. L'immobile non è vincolato dalle Belle Arti. L'eventuale ristrutturazione deve mantenere le caratteristiche del fabbricato. L'immobile è dotato di impianto di energia elettrica con salvavita, POZZO. Attacchi acqua dall'acquedotto e gas metano adiacente alla proprietà, nel caso ci si volesse allacciare. Completa la splendida proprietà un giardino di 6.713 mq dove su un lato troviamo un bosco con alberi importanti e dove è facile vedere animali selvatici, insomma un piccolo paradiso. Se l'immobile ti interessa, non esitare e chiamami per fissare il tuo appuntamento di visita. Marco Fabbri Consulente Immobiliare Espande Network Immobiliare 3929248906

Dove si trova?

Contatto e richiesta informazioni

Invia una richiesta all'agenzia

Agente di riferimento

Marco Fabbri

FABBRI

Autorizzo il trattamento dei miei dati personali in base art. 13 del reg. eu 679/2016
[X]
Per ulteriori informazioni consulta la nostra Cookie Policy