BILOCALE IN VENDITA A CERVIA - rif. IM-1400
174.000 €
3 locali
2 camere
2 bagni
40 MQ
26 - Fotografie/Planimetrie
Caratteristiche immobile
Camere: 2
Bagni: 2
Riscaldamento: Centralizzato
Tipo Riscaldamento: Radiatori
Combustibile Riscald.: GAS
40 MQ
40 MQ comm.
Stato immobile: Ottimo
Giardino: Comune
Classe ener.: G
Locali: 3
Mansarda: SI
Arredamento: Parziale
Condizionatore: SI
Piano: (NON USARE)Su più livelli
Su più livelli
Totale piani: 3
Tot. unità presenti: 4
Anno costr.: 1956
Anno ristr.: 1970
Cucina: Abitabile
Spese condominiali: assenti
Esposizione:
Nord Ovest
Cancello Elettrico
Fibra Ottica
Presentazione
🏠OCCASIONE A CERVIA A 200mt DAL MARE🏠
📍Via Cristoforo Colombo, 82, int. 4, Piano Secondo e Terzo, Cervia (RA).📍
Proponiamo in vendita Appartamento Bilocale di 40mq commerciali posto al secondo e terzo piano senza ascensore in Casa Signorile abbinata di 4 unità abitative ubicato in Via Cristoforo Colombo, 82, int. 4, Piano Secondo e Terzo, Cervia (RA).
L’appartamento si presenta disposto su due livelli:
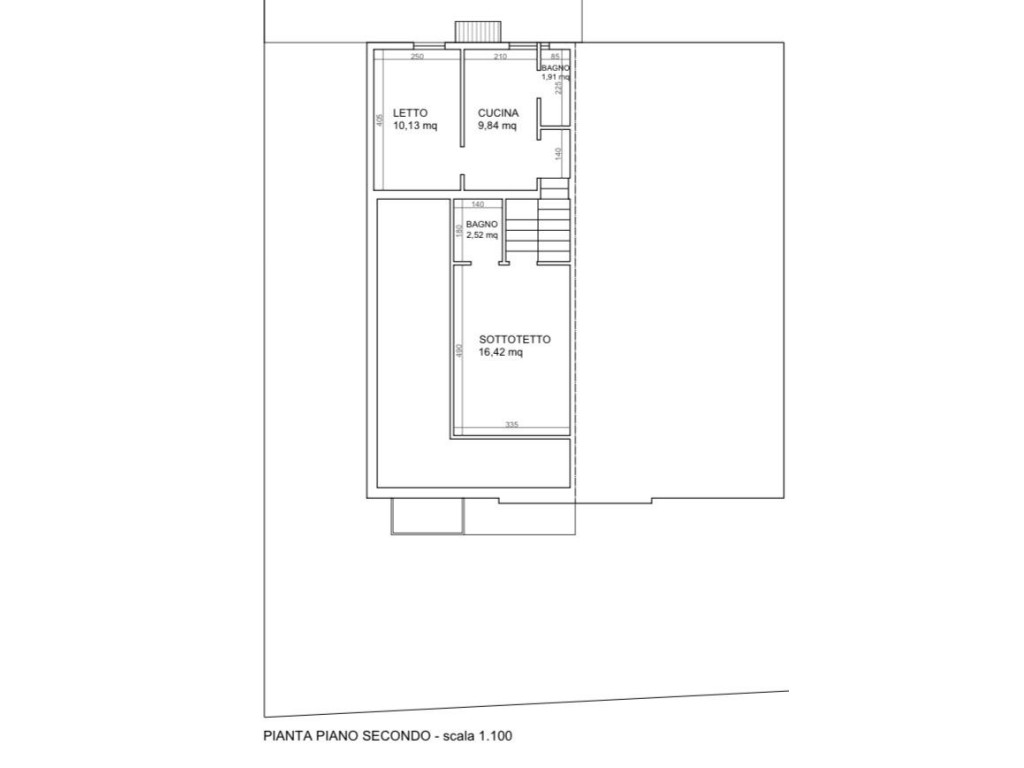
- Al piano secondo: ingresso in cucina (9,84mq), camera da letto (10,13mq), bagno finestrato con box doccia (2mq);
- Al piano terzo (accessibile da vano scala comune): camera da letto in sottotetto con H max di 2,4mt (16,42mq), bagno con lucernario con apertura manuale e doccia (2,52mq) e ripostiglio in quota di 2mq.
L’appartamento presenta rifiniture degli anni ’70 in parte e anni ’90:
- Al piano secondo gli infissi sono in doppio/vetro legno con tapparella (sostituita recentemente), l’impianto elettrico è datato agli anni ’80, il bagno è stato ristrutturato negli anni ’90 (comprese le tubature), è presente uno split di aria condizionata;
- Al piano terzo sottotetto: l’impianto elettrico e il bagno sono datati agli anni ’70.
Tutti gli impianti sono centralizzati.
FABBRICATO:
La Casa è una costruzione degli anni ’60, distribuita su un totale di piani 3 (ultimo in sottotetto) per un totale di 4 unità abitative.
Il tetto è stato rifatto 3 anni fa con doppia catramata, sono presenti n. 10 pannelli fotovoltaici.
(I metri quadri indicati tra parentesi corrispondono ai calpestabili).
📌INFO:
- 2 camere da letto (10,13mq e 16,42mq);
- Cucina abitabile di 10mq;
- 2 bagni finestrati con doccia (3mq e 2mq);
- Impianti centralizzati.
💸 PREZZO: 174.000€
📞 Contattaci se pensi che questa sia la soluzione adatta a te!
👤 Lorenzo Bergamaschi
📱 331 9039533
☎️ 0543 094205
📍Via Cristoforo Colombo, 82, int. 4, Piano Secondo e Terzo, Cervia (RA).📍
Proponiamo in vendita Appartamento Bilocale di 40mq commerciali posto al secondo e terzo piano senza ascensore in Casa Signorile abbinata di 4 unità abitative ubicato in Via Cristoforo Colombo, 82, int. 4, Piano Secondo e Terzo, Cervia (RA).
L’appartamento si presenta disposto su due livelli:
- Al piano secondo: ingresso in cucina (9,84mq), camera da letto (10,13mq), bagno finestrato con box doccia (2mq);
- Al piano terzo (accessibile da vano scala comune): camera da letto in sottotetto con H max di 2,4mt (16,42mq), bagno con lucernario con apertura manuale e doccia (2,52mq) e ripostiglio in quota di 2mq.
L’appartamento presenta rifiniture degli anni ’70 in parte e anni ’90:
- Al piano secondo gli infissi sono in doppio/vetro legno con tapparella (sostituita recentemente), l’impianto elettrico è datato agli anni ’80, il bagno è stato ristrutturato negli anni ’90 (comprese le tubature), è presente uno split di aria condizionata;
- Al piano terzo sottotetto: l’impianto elettrico e il bagno sono datati agli anni ’70.
Tutti gli impianti sono centralizzati.
FABBRICATO:
La Casa è una costruzione degli anni ’60, distribuita su un totale di piani 3 (ultimo in sottotetto) per un totale di 4 unità abitative.
Il tetto è stato rifatto 3 anni fa con doppia catramata, sono presenti n. 10 pannelli fotovoltaici.
(I metri quadri indicati tra parentesi corrispondono ai calpestabili).
📌INFO:
- 2 camere da letto (10,13mq e 16,42mq);
- Cucina abitabile di 10mq;
- 2 bagni finestrati con doccia (3mq e 2mq);
- Impianti centralizzati.
💸 PREZZO: 174.000€
📞 Contattaci se pensi che questa sia la soluzione adatta a te!
👤 Lorenzo Bergamaschi
📱 331 9039533
☎️ 0543 094205
Dove si trova?
Contatto e richiesta informazioni
Invia una richiesta all'agenzia
Agente di riferimento
Lorenzo Bergamaschi
IM-1400
Autorizzo il trattamento dei miei dati personali in base art. 13 del reg. eu 679/2016